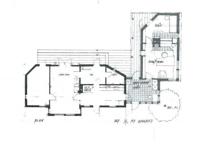
Brodins hus, St Kammarholmen Vaxholm
Ett nybyggt sommarhus – litet – men ändå ett sjömärke – väl synligt för alla som följer farleden in genom Stegesund i Stockholms skärgård.
Information
Projektår: 1987
Beställare: Familjen Brodin
Yta: 60 kvm
Ett nybyggt sommarhus – litet – men ändå ett sjömärke – väl synligt för alla som följer farleden in genom Stegesund i Stockholms skärgård.