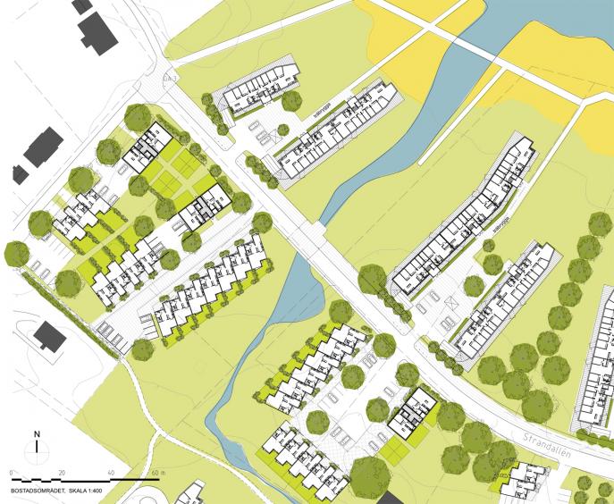
Strandängarna, bostäder Tyresö
Parallellt uppdrag för nya bostäder i strandnära läge i Tyresö Strand. Utfördes tillsammans med Landskapslaget AB.
Information
Projektår: 2006
Beställare: HSB Stockholm
Yta: ca 300 bostäder i lägenheter och småhus
Parallellt uppdrag för nya bostäder i strandnära läge i Tyresö Strand. Utfördes tillsammans med Landskapslaget AB.