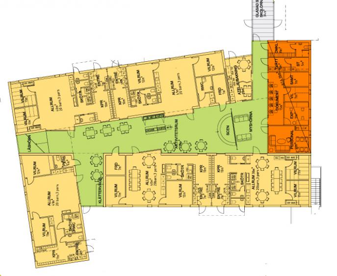
Glömsta förskola, Huddinge
Tillbyggnad till befintlig förskola. Fem avdelningar med plats för 20 barn per avdelning.
Information
Projektår: 2009 - 2011
Beställare: Huge Fastigheter
Yta: ca 2000 kvm BTA
Tillbyggnad till befintlig förskola. Fem avdelningar med plats för 20 barn per avdelning.