Pyramiden, SEB:s huvudkontor Solna


 

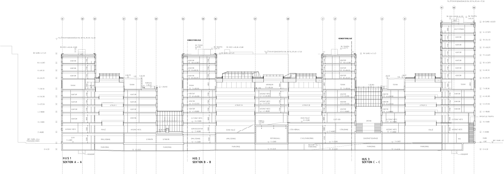
Pyramiden är SEB:s nya kontorshus som är uppdelat i tre kvarter i den nya Arenastaden i Solna. Med sina 4500 arbetsplatser är det ett av Sveriges största kontor. Projektet är miljöklassat enligt BREEAM Excellent och har förutom låg energiförbrukning även egen elproduktion via solceller.

 

Rörelse i och kring projektet var centralt i utformningen. Taken har exempelvis artrika parkanläggningar som gör det möjligt att promenera mellan byggnaderna.

 

Pyramiden projekterades tillsammans med kontoren Alessandro Ripellino Arkitekter och Krook & Tjäder.



Information
Projektår: 2014-2017
Beställare: Fabege
Yta: 97000 kvm