Sigma, flerbostadshus Upplands Väsby


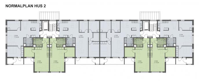
Sigma är ett område i Upplandsväsby med ett antal kvarter i lamellhus byggt på 60-talet. Detaljplanen medger en påbyggnad på vissa av områdets yttre befintliga hus med två våningar. På grund av kostnad och att de befintliga husen inte är tillgänglighetsanpassade och utan hiss blev valet att istället riva husen och bygga nya men att följa den gällande detaljplanen och gestaltningsprogrammet som förespråkade bevaring av ”60-talsandan”. Exempelvis var fasadmaterialen och färgerna bestämda och det förordades indragna balkonger. Den ”påbyggda” indragna våningen högst upp skulle likna en takvåning i svart plåt. Dessa förutsättningar medförde en spännande och utmanade process. För att få till indragna balkonger la vi förråd på balkongerna och på så vis ”flyttade fram” fasadlivet. På den översta våningen tog vi bort förråden på balkongerna och fick på så vis en indragen takvåning utan ett komplicerat terrassbjälklag. Ytterligare utmaning var att bullersidan ligger mot de bästa väderstrecken där man vill ha balkongerna. Lägenhetsplanerna är enkla och rationella då våtutrymmen med dess schakt ligger i anslutning till trapphusen. Samma ”våtrumskärna” återkommer sedan i varje trapphus medan lägenhetsplanerna kan variera. Totalt är det 10 trappuppgångar fördelade på 5 hus i två kvarter.



Information
Projektår: 2013 -2015
Beställare: Midroc/Väsbyhem
Yta: 190 Lgh